| 提交询价信息 |
| 发布紧急求购 |
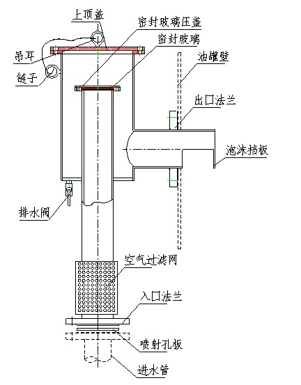
价格:电议
所在地:江苏 徐州市
型号:PCL型
更新时间:2022-12-07
浏览次数:4084
公司地址:徐州市金山桥经济开发区石桥工业园区
![]()
张毅凡(先生) 经理

|
型 号
|
额定进口压力(MPa)
|
工作压力范围
|
额定混合液量(L/S)
|
发泡倍数
|
特性系数K值
|
|
PCL8
|
0.5
|
0.3~0.6MPa
|
4
|
≥6
|
108
|
|
8
|
215
|
||||
|
PCL24
|
16
|
430
|
|||
|
24
|
645
|



|
型 号
|
H
|
H1
|
|
(mm)
|
||
|
PCL8(4-8L/S)
|
180-200
|
100
|
|
PCL24(16-24L/S)
|
240-280
|
150
|

|
型 号
|
b
|
D
|
D1
|
划痕线
|
|
(mm)
|
||||
|
PCL8
|
2
|
93
|
79
|
十字划痕
|
|
PCL24
|
2
|
165
|
149
|
|
免责声明:以上所展示的[PCL型 立式泡沫产生器]信息由会员[徐州艾迪石化设备制造有限公司]自行提供,内容的真实性、准确性和合法性由发布会员负责。