1 概述
ARD系列智能电动机保护器,具有过载、断相、不平衡、欠载、接地/漏电、堵转等保护功能。产品有ARD2简易型系列和ARD3高级型系列两大类。ARD保护器可与接触器、电动机起动器等电器元件构成电动机控制保护单元,具有远程自动控制、现场直接控制、面板指示、信号报警、现场总线通信等功能。可广泛应用于煤矿、石化、冶炼、电力、建筑等行业的配电领域。
2 符合标准
GB/T14048.1-2000低压开关设备和控制设备总则
GB14048.4-2003低压开关设备和控制设备 机电式接触器和电动机起动器
GB14048.5-2001低压开关设备和控制设备 控制电路电器和开关元件,第1部分:机电式控制电路电器
GB/T17626.4-2006电快速瞬变脉冲群抗扰度试验
GB/T17626.5-2006浪涌(冲击)抗扰度试验
JB/T 10736-2007 低压电动机保护器
3 适用环境
工作温度:-10℃~+55℃
贮存温度:-20℃~+65℃
相对湿度:5%~95%不结霜
海拔:≤2500m
污染等级:2级
防护等级:IP20
安装类别:III级
运用场合:煤矿、石化、冶炼、电力、船舶、以及民用建筑等领域
4 产品规格
4.1 ARD2系列智能电动机保护器
4.1.1 功能
ARD2系列智能电动机保护器(以下简称保护器),采用新的单片机技术,具有抗干扰能力强、工作稳定可靠、数字化、智能化、网络化等特点。保护器能对电动机运行过程中出现的过载、断相、不平衡、欠载、接地/漏电、阻塞、外部故障等多种情况进行保护,并设有SOE故障事件记录功能,方便现场维护人员查找故障原因。
4.1.2 型号说明


4.1.3 技术指标

4.1.4 功能配置

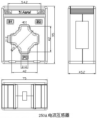
4.1.5 外形及尺寸(mm)
●主体模块

●互感器




4.1.6 接线端子

4.1.7 应用方案
●直接起动模式接线图
点此处见(详情)
● 星—三角起动模式接线图
点此处见(详情)
4.1.8 订货范例
例:
型号:ARD2-25A/QJCKSR
输入:线电压AC 380V
电机额定电流6.3A~25A
应用场合:三相电机
测量参数:三相电流、三相平均电流、线电压
附加功能:远程起动、报警输出、4路开关量输入、8个SOE
事件记录:RS485通讯
4.2 ARD2F系列智能电动机保护器
4.2.1 功能
ARD2F系列智能电动机保护器(以下简称保护器),采用新的单片机技术,具有抗干扰能力强、工作稳定可靠、数字化、智能化、网络化等特点。保护器能对电动机运行过程中出现的起动超时、过载、堵转、断相、不平衡、欠载、接地/漏电、阻塞、过压、欠压、温度、tE保护等多种情况进行保护,设有SOE故障事件记录功能,方便现场维护人员查找故障原因,并通过LCD中文液晶显示屏、状态指示灯等各种方式,将电机的运行状态清晰、直观地显示出来。适用于煤矿、石化、冶炼、电力、船舶以及民用建筑等领域。该保护器具有RS485远程通讯接口,DC4~20mA模拟量输出,方便与PLC、PC等控制机组成网络系统,实现电动机运行的远程监控。
4.2.2 型号说明


4.2.3 技术指标

4.2.4 外形及尺寸(mm)
●主体模块

●显示单元

●互感器
同ARD2互感器部分
4.2.5 接线端子

4.2.6 应用方案
●保护模式接线图
点此处见(详情)
●直接起动模式接线图
点此处见(详情)
●星—三角起动模式接线图
点此处见(详情)
●软起动器起动模式接线图
点此处见(详情)
●正反转起动模式接线图
点此处见(详情)
●自耦降压起动模式接线图
点此处见(详情)
控制权限选择(除保护模式外):90L显示单元按键本地控制、DI端就地控制、上位机通讯远程控制。DI9、DI10组合实现三位置权限选择。下表中“0”表示开关量输入未接通,“1”表示接通。

4.2.7 订货范例
例:
型 号:ARD2F-25/QTJCSR+90FL
辅助电源:AC85V~AC220V
电机额定电流:6.3A~25A
应用场合:三相电机
测量参数:三相电流、PTC电阻值
附加功能:起动控制、温度保护、报警输出、RS485通讯、8个SOE事件记录
显示方式:90FL(中文液晶显示)
4.2.8 订货注意事项
如用户无特别注明,则互感器与保护器的连接线默认0.5m,保护器主体与显示单元的连接线默认1.5m。
如用户有特殊要求的(如单相电动机保护器、连接线长度、抗晃电等)需在订单中注明。
4.3 ARD3系列智能电动机保护器
4.3.1 功能
ARD3智能电动机保护器(以下简称ARD3),适用于额定电压至AC 690V、额定电流至AC 800A、额定频率为50/60Hz的电动机。产品体积小,结构紧凑,安装方便,在低压控制终端柜和1/4模数及以上各种抽屉柜中可直接安装使用,提高了控制回路的可靠性和自动化水平。
ARD3采用模块化的产品结构形式,包括主体(保护控制功能模块)、互感器检测模块、远程显示模块。根据需要选配ARD3的功能模块或附件,与接触器、电动机起动器等电器元件构成电动机控制保护单元,有远程自动控制、现场直接控制、面板指示、信号报警、现场总线通信等功能。适用于煤矿、石化、冶炼、电力、船舶、以及民用建筑等领域。
4.3.2 型号说明



4.3.3 技术指标

4.3.4 功能配置

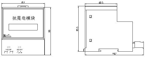
4.3.5 外形及尺寸(mm)
●主体模块

●显示单元

●互感器



●抗晃电模块

●AC380V电源模块

4.3.6 接线端子
4.3.7 安装实例

4.3.8 电动机保护功能
●过载保护 ●欠载保护 ●堵转保护 ●阻塞保护 ●温度保护
●相序保护 ●欠压保护 ●过压保护 ●欠功率保护 ●起动超时保护
●断相保护 ●不平衡保护 ●接地保护 ●漏电保护 ●外部故障保护
4.3.9 保护设定参数
点此见(详情) (详情2)
4.3.10 保护特性
■ 过载保护
当电动机在过负载故障下,长时间超过其额定电流运行时,会导致电动机过热,绝缘降低而烧毁,保护器根据电动机的发热特性,计算电动机的热容量,模拟电动机发热特性对电动机进行保护,过载保护不同脱扣级别对应的特征
曲线如下图
点此见(详情1) (详情2)
■ 欠载保护
当电动机所带负载为泵式负载时,电动机空载或欠载运转会产生危害,保护器提供欠载保护,当三相的平均电流与额定电流的百分比低于设定值时,保护器应在动作(延时)设定时间内动作或在报警时间内报警。
■ 堵转/阻塞保护
电动机在起动时或运行过程中,如果由于负荷过大或自身机械原因,造成电时机轴被卡住,而未及时解除故障,将造成电机过热,绝缘降低而烧毁电机,堵转保护适用于电动机起动发生此类故障进行保护,阻塞保护适用于电动机运行过程中发生此类故障时进行保护,当电流达到动作设定电流时,保护器应在动作(延时)设定时间内动作或在报警时间内报警。
■ 断相(不平衡)保护
断相(不平衡)故障运行时电动机的危害很大,当电动机发生断相或三相电流严重不平衡时,如不平衡率达到保护设定值时,保护器按照设定的要求保护,发出停车或报警指令,使电动机的运行更加安全。
■ 接地/漏电保护
保护器同时具备接地保护和漏电保护功能。接地保护电流信号取于内部电流互感器的矢量和,用于保护相线对电动机金属外壳的短路保护,保护器可通过增加漏电互感器,检测出30mA~50mA的故障电流,主要用于非直接接地的
保护,以保证人身安全。
■ 外部故障保护
当保护器检测到有外部故障出现,外部故障开关量输入与保护器定义的开关量输入状态不一致时,保护器按照设定的要求保护,确保电动机设备安全。
■ 起动超时保护
在电动机起动过程中,保护器只具有断相(不平衡),接地/漏电等保护功能,其余保护功能不起作用,在起动结束后,所有保护功能(按用户设定)均自动投入,当电动机起动时间超过用户设定的起动时间,电流还大于额定电流1.1倍时,保护器按照设定的要求保护,在动作(延时)设定时间内发出停车命令,停止电机运行。
■ 相序保护
具有相序保护功能的保护器,当其电源侧的电压相位顺序与设定的顺序一致时,保护器应不动作。当保护器检测到电动d的相序接错时,电动机应不能起动。
■ 欠压保护
电压过低会引起电动机转速降低,甚至停止运行,当电动机运行电压下降至设定的欠电压保护范围时,保护器按设定的要求进行保护,在动作(延时)设定时间内动作或在报警时间内报警,以避免重要的生产工艺造成混乱,严重
影响生产。
■ 过压保护
电压过高会引起电动机绝缘程度损伤,当电动机运行电压超过设定的保护电压时保护器按设定的要求进行保护,在动作(延时)设定时间内动作或在报警时间内报警,以保证电动机设备安全。
■ 欠功率保护
电动机由于传动装置损坏,失去机械输出能力,欠载运行时,电动机功率因数较低,但电动机电流很大,大量消耗系统的无功,当负载功率与额定功率的百分比低于设定动作值时,保护器在动作(延时)设定时间内动作或在报警时间内报警。
■ 温度保护
温度保护是以预埋在电动机绕组上的PTC热敏电阻检测送出的热敏阻值的变化情况实现保护作用。
热电阻类型为正温度系数PTC,实测热电阻值≥动作电阻设定值时延时动作,如果故障动作后需待实测热电阻值<返回电阻设定值,才可以清除报警或故障输出触点,使电动机再次正常运行。
如有意向,可索取详细资料,请联系:
上海安科瑞电气股份有限公司
地址:上海市嘉定区马东工业园区育绿路253号
技术支持:王凯锋 021-69158378
电子邮箱:acrelwangkaifeng@163.com
邮编:201801
:
QQ:787160548
http://acrelwkf.cn.alibaba.com/