产品简介
LJQ系列 钟罩式气体校验装置 LJQ系列钟罩式气体校验装置是
公司简介
淄博佰思通自控仪表有限公司专业设计、制造各类流体控制阀;公司在全体员工的努力和各大经销商、使用配套单位的大力支持下,有了较大发展。在全国中心城市基本已建立了销售网点和办事处,能为你提供售前售后服务。
公司同时授权代理三力信电磁阀、环工变送器、赛尔斯传感器,美国GC VALVES电磁阀、德国Muesen变送器,台湾Kimax执行器、电动阀等品牌。
公司机械设备精良、加工工艺先进、检测手段完备、员工业务素质良好,大专以上学历占全体员工的80%以上;我们的技术工程师可以为您进行特殊规格和新产品的开发设计、制造,技术咨询等服务。
“达则兼善天下,实则恒心如一”。公司将始终遵循自主创新和专业服务的方向,持续提升核心竞争力,为客户创造更大价值。
Zibo Stone Instrument Co.,Ltd. Specializes in designing and manufacturing all kinds of fluid control valves; The company has been developed greatly through the efforts from the staffs and great cooperation form the big distributors and related units. A lot of sales chain stores and offices have been established at the main cities in the whole country basically,which can provide you with services of before-sale and after-sale.
The company also authorized agent Sanlixin Solenoid Valve , Ring for transmitter , Saiersi sensor, the GC VALVES in USA , Muesen transmitter in Germany, Kimax actuators in TaiWan, Electric valve and so on brand.
The company has superior mechanical equipments,advanced processes,complete test methods,well business qualifications, especially technicians and administrative personnel being high education are occupied more than 80% in the staffs.Some specific and new products can be developed made,consulted about the techniques by our company if you have some requests.
“ To benefit all the people in the world,but in reality if perseverance”The company will always follow the independent innovation and professional services direction, continue to improve the core competence ,to create more value for customers.
展开
产品说明
LJQ系列
钟罩式气体校验装置
LJQ系列钟罩式气体校验装置是标定气体流量仪表的标准装置。可标定转子流量计、湿式或干式气体流量计(煤气表)、小型孔板或喷嘴流量 计及其它形式的气体流量计。
|
 |
|
特点
结构简单,使用方便
标定准确
|
主要技术指标
|
| |
|
| 工作原理 |
 |
气体计量器是以钟罩内有效容积作为标准体积,当钟罩下降时,排出钟罩内气体经测试管通往被检仪表,比较钟罩内排出的气体体积与被检仪表指示的体积,求取仪表的精度。
钟罩内的气体压力是利用钟罩重量超过配重砣重量来产生的,该恒压形成钟罩的余压也即所谓的“工作压力”,并用凸轮补偿机构使该恒压不随钟罩浸入封液深度不同而变化,保证了钟罩内工作压力的恒定。当需改变工作压力时,可增减配重砝码。 |
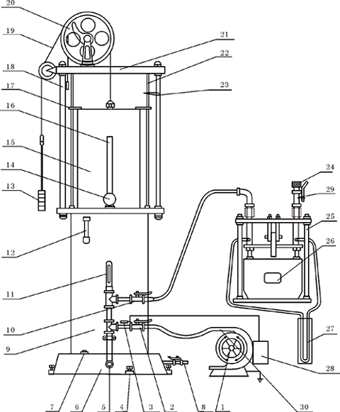
外形结构
|
|
 |
| |
|
1.风机 2.进气阀 3.联动开关
4.调节螺栓 5.放水螺栓 6.外筒底座
7.水平泡 8.放水阀 9.外筒
10.钟罩出气阀 11.温度计 12.水位尺
13.法码 14.放大镜 15.钟罩
|
16.标尺 17.导向滑块 18.立柱
19.钢丝绳 20.绳轮机构 21.横梁
22.导向杆 23.限位指示 24.流量设定器
25.夹紧装置 26.被校仪表 27."U"形差压表
28.电源接线盒 29.夹紧装置出气阀门 30.风机出口 |
本页产品地址:http://www.geilan.com/sell/show-506526.html