提交询价信息
发布紧急求购
您好,欢迎来到给览网!手机版|本站服务|添加收藏|帮助中心
您所在的位置: 给览网 » 供应 » 工控仪表 » 压力仪表 » 压力变送器 » 小巧型压力变送器

小巧型压力变送器

江苏普能仪表有限公司
会员指数: 企业认证:         

价格:电议

所在地:江苏 淮安市

型号:

更新时间:2010-06-11

浏览次数:2573

公司地址:江苏淮安金湖工业园区

孙瑞梅(女士)  

产品简介

产品[小巧型压力变送器]的详细资料

公司简介

江苏普能仪表有限公司座落于一代伟人周总理的故乡--淮安市,是以流量、压力、温度、校验、显示、记录仪表为主导产品的公司。  公司现有员工多人,其中有各类高、中级专业技术人员多人,公司本着”质量第一、用户至上”的原则,以产品质量为中心, 建立了完整的产品质量保证体系,通过采用新技术、新工艺,向用户提供了质 量可靠、性价比优越的产品。 江苏普能仪表有限公司经过多年发展,凭借先进的企业经营、高质量的生产管理及优秀的市场服务体系,产品覆盖了全国20多个省、市、自治区,广泛用于石油、化工、医药、冶金、造纸、 食品、市政等领域,在广大用户中享有较高的声誉。 面向未来,普能期待您的垂询
展开

产品说明

产品[小巧型压力变送器]的详细资料
小巧型压力变送器
  放大图片
产品型号:
PN-M
产品名称:
小巧型压力变送器
产品特点:
 
小巧型压力变送器的详细资料:

PN-M小巧型压力变送器

应用

 

该变送器使用陶瓷压阻式传感器。结构简单,体积小巧,易安装,适用于与接触部分材质兼容的气体和液体介质。可以测量表压、绝压和负压。

点击看大图
PN-M(带LED表头指示)
 

技术参数

 
测量范围:-100KPa~60MPa
允许温度:
介质温度:-30~85℃
环境温度:-30~85℃
储存温度:-30~85℃
温度影响:TK<±0.02%FS/K
精度等级:0.2、0.5级
工作电压:18~36VDC
输出信号:4~20mA(二线制);1~5V(三线制)
负载电阻:<=1000Ω
工作原理  
抗腐蚀的陶瓷压力传感器没有液体的传递,压力直接作用在陶瓷膜片的前面,使膜片产生微小的形变,厚膜电阻印刷在陶瓷膜片的背面,连接成一个惠斯通电桥(闭桥),由于压敏电阻的压阻效应,使电桥产生一个与压力成正比的高度线性、与激励电压也成正比的电压信号,标准的信号根据压力量程的不同标定为2.0/3.0/3.3mV/V,可以和应变式传感器相兼容。通过激光标定,传感器具有很高的温度稳定性和时间稳定性,传感器自带温度补偿0~70℃,并可以和绝大多数介质直接接触。
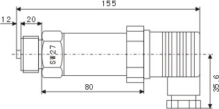
尺寸大小  
点击看大图
电气连接  
PN-M小巧型变送器的电气连接方式和输出信号为:
二线制:1 电源正
2 信号正
3 外壳
三线制:1 电源正
2 电源负(与信号负共用)
3 信号+
点击看大图

PN-M型压力变送器型谱表

 
  压力变送器类型
  PN-M1 陶瓷压阻
PN-M2 扩散硅
 
|
|
|
|
|
|
|
|
|
|
|
|
|
|
|
|
|
|
|
|
|
|
|
|
|
|
|
|
|
|
|
|
|
过程连接材料
 
1
2
不锈钢316L
约定的特殊要求
 
|
|
|
|
|
|
|
|
|
|
|
|
|
|
|
|
|
|
|
|
|
|
|
|
|
|
|
|
|
|
过程连接形式
  R
N
K
S
外螺纹G1/2,内孔Φ11.4mm
外螺纹NPT1/2,内螺纹NPT1/4
外螺纹M20×1.5,内孔Φ11.4mm
约定的特殊要求
 
|
|
|
|
|
|
|
|
|
|
|
|
|
|
|
|
|
|
|
|
|
|
|
密封材料
 
F
P
S
氟素橡胶
PTFE
约定的特殊要求
 
|
|
|
|
|
|
|
|
|
|
|
|
|
|
|
|
|
|
|
|
输出信号
 
2
4
6
模拟信号4~20mA二线
模拟信号1~5V三线
约定的特殊要求
 
|
|
|
|
|
|
|
|
|
|
|
|
|
|
|
|
外壳类型
 
A
压铸铝外壳
 
|
|
|
|
|
|
|
|
|
|
|
|
|
|
现场显示表类型
 
N
A
无现场显示
LED显示
 
|
|
|
|
|
|
|
|
|
|
精度等级
 
1
2
3
0.1
0.2
0.5
 
|
|
|
|
|
|
测量量程
  [参见标准量程代码表]
例如:D3 0~10KPa
 
|
|
   
     
PN-
M
1
R
F
2
A
N
3
D3
  选型举例

标准量程表

 
测量范围
代号
量程调节范围
测量范围
代号
量程调节范围
测量范围
代号
量程调节范围
0~4KPa
D1
0.7~7KPa
0~200KPa
E3
60.0~200KPa
0~10MPa
H1
3.0~10MPa
0~6KPa
D2
0.7~7KPa
0~250KPa
E4
120.0~400KPa
-2~2KPa
H2
3.0~30MPa
0~10KPa
D3
1.0~10KPa
0~400KPa
E5
120.0~400KPa
-5~5KPa
C1
2.0~7.0KPa
0~16KPa
D4
10.0~20KPa
0~0.6MPa
F1
0.2~0.6MPa
-10~10KPa
C2
5.0~20KPa
0~20KPa
D5
10.0~20KPa
0~1.0MPa
F2
0.3~1.0MPa
-20~20KPa
C3
2.0~20KPa
0~25KPa
D6
12.0~30KPa
0~1.6MPa
F3
0.6~2.0MPa
-50~50KPa
C4
-8.0~20KPa
0~40KPa
D7
12.0~40KPa
0~2.0MPa
F4
0.6~2.0MPa
-100~0KPa
C5
10.0~100KPa
0~60KPa
D8
20.0~60KPa
0~2.5MPa
F5
1.2~4.0MPa
-100~0KPa
B1
-40~100KPa
0~100KPa
E1
30.0~100KPa
0~4.0MPa
F6
1.2~4.0MPa
-100~100KPa
B2
-40~100KPa
0~160KPa
E2
60.0~200KPa
0~6.0MPa
F7
2.0~6.9MPa
-100~1000KPa
B3
240~1000KPa


本页产品地址:http://www.geilan.com/sell/show-1422.html
免责声明:以上所展示的[ 小巧型压力变送器]信息由会员[江苏普能仪表有限公司]自行提供,内容的真实性、准确性和合法性由发布会员负责。
[给览网]对此不承担任何责任。
友情提醒:为规避购买风险,建议您在购买相关产品前务必确认供应商资质及产品质量!

发布询价单

厂商其他产品

您最近浏览过的产品

没有合适的产品?是否在线询价?
询价标题
联系人
电话
主要内容
验证码